
Overall high school site plan. Parking in front of the school will be expanded. Bus drop-off and loading will be in a separate lot to the west of the main parking. North is up.

The site plan for the new 2-story East Building, to be constructed on the west section of the current War Memorial Field. An outdoor plaza and amphitheater will separate the new building from the current building. Note the outdoor commons plaza. North is to the right.

The schematic layout of the top floor of the East Building. North is to the right.

The schematic layout of the ground floor of the East Building. North is to the right.

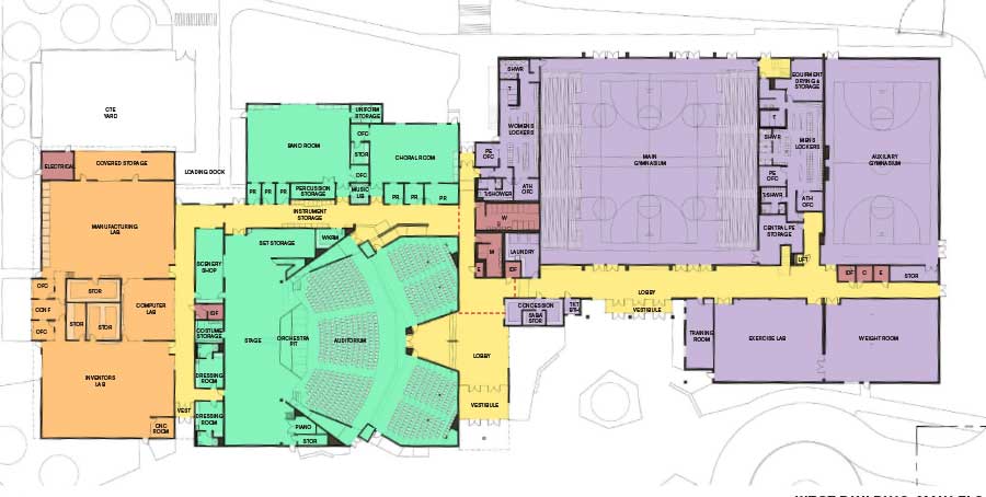
The schematic layout of the renovated West Building, including Brodniak Hall and the gym. North is to the right.

A view of what the main entrance to the school (and the East Building) could look like. This is a schematic view, not an architectural drawing, which will come later.