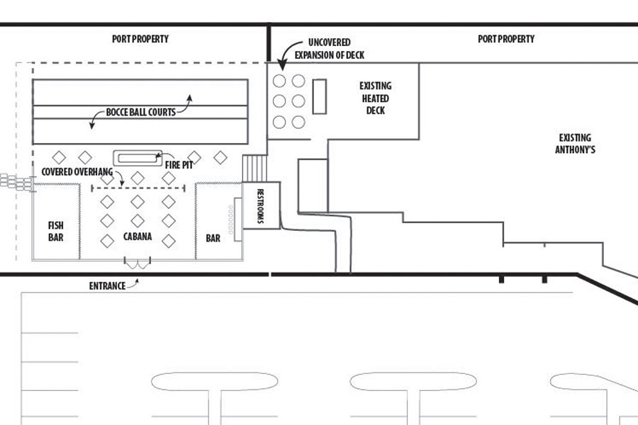
The Cabana will be a casual, seafood restaurant with a classic “to-go fish and chips” bar ideal for family outings, friends and spur-of-the-moment dining.
The 3,892 square foot Cabana area will seat 94 in the pavilion and bar area. An additional 32 seats will be added to the existing deck at Anthony’s at Cap Sante Marina. The Cabana will feature casual café dining, a classic “fish and chips to-go bar”, ample open-air dining and a full bar as well as two Bocce Ball courts on the outside perimeter.
Anthony’s is working with Seattle-based architect firm MG2 (formerly Mulvanny G2) on the design and Edmonds-based contractor Wilcox Construction.
According to General Manager Tami Wolfe, “Anthony’s is excited to add this fun, casual addition to our restaurant. It will offer our Anacortes guests another dining option at the Marina.” The Cabana by Anthony’s will open in the fall of 2015.
Anthony’s Restaurants owns and operates a family of privately held restaurants in locations throughout the Pacific Northwest. From classic 'to-go' eateries to casual dining and relaxed dinner houses, Anthony’s core commitment to fresh Northwest seafood and meat, complemented by local produce, Northwest wines and microbrews, is the foundation for each restaurant.
To ensure Anthony’s commitment to purchasing only the highest quality fresh seafood, Anthony’s opened its own seafood company in 1985, located at Pier 91, Seattle. Anthony’s is proud of its continuing commitment to quality and value, which has made it the place for fresh Northwest seafood throughout the Pacific Northwest.
